60m2开间老公寓丨翻新原木日式宅
此套房本身就是个开间户型,除过单独的厨卫,其他就是大开间,原房东过去老旧的装修,导致光线和空间都极其混乱,所以后期改造重点就是布局的重新规划和光线的调整。
 
▲未改造之前的原图,开间光线本身不好,采用各种收纳柜遮挡,遮挡空间更小,光线更暗
 
▲非常凌乱的一角,不忍直视
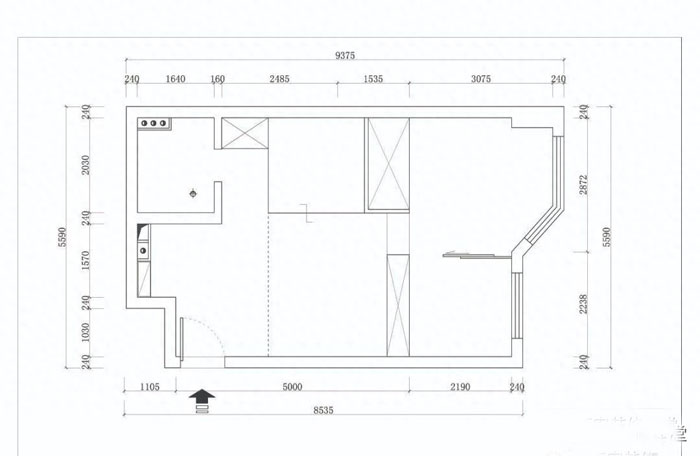
房子的原始结构图纸,进门就是没有封闭的厨房,原始公寓本身就是开放厨房,紧邻就是很小的卫生间,其他彻底开放,原房东直接在卫生间对面放床,用隔断柜分割空间,导致进门光线整体没有,而分割的另一边因为有窗户,光线非常好,也就是布局彻底是错误的做法.
▲重新规划以后的布局,开放式厨房U型橱柜布局,进门直对延伸吧台功能,下方满足鞋柜收纳。卫生间彻底干湿分离,并成就了洗衣机的位置。新砌墙体分割出一个衣帽间和卧室空间。原来的隔断柜拆除彻底打通布局客餐厅区域,为了光线和视觉的更加通透,卧室采用玻璃移门与客厅相通,视觉和光线双丰收.
合肥老房子翻新 
▲进门直对就是开放式厨房,延伸的吧台两个吧凳就可以满足就餐所需
合肥老房子翻新 
▲进门直对开放式厨房,布局U型橱柜,延伸出一个小吧台空间,朝内下方可以塞进一个小冰箱,朝外很小的位置刚好满足鞋柜收纳。进门左手简单挂衣钩满足衣服的悬挂。右手木质换鞋凳满足临时换鞋的需求,业主养猫,所以电视墙角落做了猫爬架,以及全身镜的功能布置.
合肥老房子翻新 
▲把原来的老旧格局打通以后,电视墙延伸段定制满墙书柜,布置简单原木书桌椅,这里就是平时的工作台区域
合肥老房子翻新 
▲客餐厅全景,新砌墙形成的凹陷区刚好放置沙发,不放茶几,空间更宽敞
合肥老房子翻新 
▲回看入户门口以及开放式厨房,因为厨房没有窗户所以只能开放式设计,木色地柜与白色吊柜清新配置
合肥老房子翻新 
▲全景空间,超大的落地书柜,原木工作台布置,平时看书休闲,有一份好心情
合肥老房子翻新 
▲定制的一整排书柜,满足书籍的收纳
合肥老房子翻新 
▲唯一分割出来的卧室空间,为了采光和空间通透,与客厅采用通透玻璃移门分割
合肥老房子翻新 
▲卧室带休闲飘窗,壁灯照明,可以休闲看书
合肥老房子翻新 
▲卫生间门口利用过道做了干区布置,同时满足了洗衣机的放置,空间合理利用
合肥老房子翻新 
▲卫生间湿区爵士白瓷砖黑色瓷砖的对比质感,黑色淋浴房分割空间